| Doeve Brokers | |
| Schiedamsedijk 52, Vlaardingen, 3134KK, Netherlands | |
| Contact: | Doeve Brokers and Valuers Yachts & Ships |
| Telephone: | Reveal Telephone Number |
| Mobile: | Reveal Mobile Phone Number |
| View All Doeve Brokers Listings | |
| €224,500 | | |
| Status: | Available |
| Tax Information: | VAT Status not specified, see brokers website for more details |
| Location: | Utrecht Netherlands |
| Reference: | 1615 |
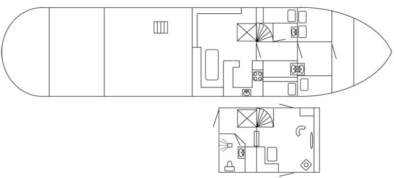
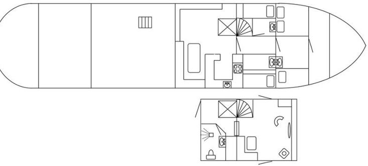
Op 14 januari 1965 trad dit vaartuig, thans in gebruik als varend woonschip, in dienst bij Rijkswaterstaat. Het schip werd ingezet bij werkzaamheden ten behoeve van de Deltawerken en voor hydrografische taken in Noord-Nederland. Vanuit de vaste standplaats Delfzijl verrichtte het schip hydrografisch onderzoek, waaronder metingen en waarnemingen van het watersysteem. Na de uitdienststelling in 1998 is de Dr. Ir. Johan van Veen door de daaropvolgende twee eigenaren permanent bewoond en op enkele punten aangepast voor bewoning, waaronder de installatie van een rolstoellift naar het benedendek. Het schip heeft drie hutten, een ruime salon/mess met open keuken, een badkamer, een comfortabele stuurhut met goed rondom zicht en een riant achterdek, dat in het verleden tevens is gebruikt voor het plaatsen van een container met meetapparatuur. Naar onze mening betreft het een robuust en goed bewoonbaar schip, dat reeds is aangemeld voor de Schepencarrousel, maar tevens op andere wijze inzetbaar is. In haar actieve periode werd het schip door Rijkswaterstaat ingezet tot een afstand van 12 zeemijl uit de kust, bij weersomstandigheden tot en met 8 Bft. Bijzonder is bovendien dat het schip beschikt over een geldige certificering voor de Rijnvaart.
On January 14, 1965, this vessel, now in use as a cruising liveaboard vessel, was commissioned by the Dutch Directorate-General for Public Works and Water Management (Rijkswaterstaat). The vessel was deployed in support of the Delta Works and for hydrographic operations in the Northern Netherlands. Operating from her home port of Delfzijl, it carried out hydrographic surveys, including measurements and observations of the seabed and hydrodynamic conditions. After being decommissioned in 1998, the Dr. Ir. Johan van Veen has been permanently inhabited by the subsequent two owners and was adapted for residential use in several areas, including the installation of a wheelchair lift to the lower deck. The vessel has three cabins, a spacious salon/mess with open-plan galley, a bathroom, a comfortable wheelhouse with excellent all-round visibility, and a generous aft deck. The aft deck was previously also used to accommodate a container with survey/measurements equipment. In our view, this is a robust and well-converted vessel suitable for permanent habitation. She has already been registered for the Ship Carousel scheme, while remaining suitable for alternative operational use. During her active service, the vessel was operated by the Dutch water authority up to 12 nautical miles offshore, in conditions of up to Beaufort force 8. Of particular note is that the vessel holds valid certification for navigation on the River Rhine.
Am 14. Januar 1965 wurde dieses Schiff, das heute als Fahrendes Wohnschiff genutzt wird, von der niederländischen Wasserstraßen- und Schifffahrtsverwaltung (Rijkswaterstaat) in Dienst gestellt. Das Schiff wurde zur Unterstützung der Deltawerke sowie für hydrografische Aufgaben in Nordniederland eingesetzt. Von ihrem festen Stationierungsort Delfzijl aus führte es hydrografische Vermessungen durch, darunter Messungen und Beobachtungen des Gewässer- und Meeresbodensystems. Nach der Außerdienststellung im Jahr 1998 wurde die Dr. Ir. Johan van Veen von den beiden nachfolgenden Eigentümern dauerhaft bewohnt und in mehreren Bereichen für Wohnzwecke umgebaut, unter anderem durch den Einbau eines Rollstuhllifts zum Unterdeck. Das Schiff verfügt über drei Kabinen, einen großzügigen Salon/Messe mit offener Küche, ein Badezimmer, ein komfortables Steuerhaus mit hervorragender Rundumsicht sowie ein geräumiges Achterdeck. Dieses Achterdeck diente in der Vergangenheit auch zur Aufstellung eines Containers mit Messtechnik. Nach unserer Einschätzung handelt es sich um ein robustes und gut bewohnbares Schiff, das bereits für das Schepencarrousel angemeldet ist, jedoch auch anderweitig einsetzbar bleibt. Während ihrer aktiven Dienstzeit wurde das Schiff bis zu 12 Seemeilen vor der Küste und bei Wetterbedingungen bis einschließlich 8 Bft eingesetzt. Besonders hervorzuheben ist die gültige Zulassung für die Rhein.
Le 14 janvier 1965, ce navire, aujourd’hui utilisé comme bateau-logement, est entré en service auprès de Rijkswaterstaat, l’administration néerlandaise des infrastructures hydrauliques, équivalente fonctionnellement à Voies navigables de France (VNF). Le navire a été engagé dans les travaux du Plan Delta ainsi que pour des missions hydrographiques dans le nord des Pays-Bas. Depuis son port d’attache de Delfzijl, il a réalisé des levés hydrographiques comprenant des mesures et observations du système hydrodynamique et du fond marin. Après sa mise hors service en 1998, le Dr. Ir. Johan van Veen a été occupé de manière permanente par les deux propriétaires successifs et adapté de façon limitée à un usage résidentiel, notamment par l’installation d’un élévateur pour fauteuil roulant vers le pont inférieur. Le navire dispose de trois cabines, d’un vaste salon/mess avec cuisine ouverte, d’une salle de bains, d’une timonerie confortable offrant une excellente visibilité périphérique, ainsi que d’un large pont arrière. Ce pont arrière a également été utilisé par le passé pour l’installation d’un conteneur d’équipements de mesure. À notre avis, il s’agit d’un navire robuste et parfaitement habitable, déjà inscrit au programme de la Schepencarrousel, tout en restant exploitable pour d’autres usages. Durant sa période d’exploitation active, le navire a été utilisé jusqu’à 12 milles nautiques au large, par des conditions météorologiques allant jusqu’à 8 sur l’échelle de Beaufort. Il est en outre remarquable que le navire dispose d’une certification valide pour la navigation sur le Rhin.
| Vessel type: | motor |
| Builder: | Scheepswerf Fa. H. Schouten, NL-Muiden |
| Constructed: | 1964 |
| Registry: | Nederlands geregistreerd, Z-Geregistreerd, Kosten voor het over-/ en eventueel uitschrijven zijn voor rekening van de koper. |
| Engine model: |
GM Detroit 8V71 |
| Engine power: | 232 pk, 171 kW |
| Engine hours: | 20640 |
| Length over all: | 23.23m |
| Beam: | 5.22m |
| Maximum draft: | 1.75m |
| Hull colour: | zwarte romp, zwarte boeiing, gele opbouw, zie foto's, laatste onderwaterschip behandeling 07-2021 |
Refrigerator: aanwezig, 230 Volt
Freezer: aanwezig, 230 Volt
Builder: Scheepswerf Fa. H. Schouten, NL-Muiden
Year: 1964
Deck Construction: staal
Hull Type: rondspant
Displacement: 74 GT, 22 NT, 80 ton
LOA: 23.23 metres
Beam: 5.22 metres
Draft: 1.75 metres
Air Draft: 5,50 m alles plat
Hull Colour: zwarte romp, zwarte boeiing, gele opbouw, zie foto's, laatste onderwaterschip behandeling 07-2021
Hull Construction: staal
Keel Type: slingerkimmen
DAB hydrofoor1x elektrische pomp, 230 Voltja, fles(sen) in gasbunlucht compressor, deels LED verlichting, reserve schroef
Engine Manufacturer: GM Detroit8V71
Horse Power: 232 pk, 171 kW
Cylinders: V8
Hours: 20640 op de urenteller
Fuel: dieselaanwezig
Gearbox: Carterpillar by Twin Disc MG-509 hydraulisch
Cooling System: gesloten, koelpijpen
Drive Type: 4 blads schroef, oliebad schroefaskoker
Bow Thruster: HRP hydraulische boegschroef, proportioneel, 30 kW
lantaarn mast, aluminiumja, hydraulisch
Batteries: 2x 225 Ah start accu(s), 625 Ah tractie accu set, 625 Ah tractie accu set, 2 nood accu(s), 2x Victron BMV 700 accu monitor
Battery Charger: 2x Victron Skylla-TG acculader 24/80
Generator: Perkins diesel generator, 60 kVA, 230/400 Volt, 1500 RPM, 14050 draaiuren (ca.)
Inverter: Victron Phoenix omvormer 24/5000
24 / 230 / 400 Volt, 230 Volt walstroom aansluiting, 400 Volt walstroom aansluiting2x scheidingstransformator4x 235 Wp zonnepaneel, Victron BlueSolar MPPT laadregelaar 100/50
Bilge Pumps: elektrische pomp, 400 Volt, via manifold, tevens dekwaspomp
aanwezig, aluminiumreling rondom achterdek
Doeve Brokers and Valuers Yachts & Ships is located in the Netherlands (near Rotterdam) and are since 1972 in the Sale & Purchase brokerage.
We are a HISWA Qualified Yacht & Shipbroker and are also EMCI registered Yacht broker and VRT Register Valuer. For more information regarding our listings or what we can do for you please get in contact us. All our listings are located on the own mooring. If you want to look at one or more of our listings, please let us know and we will make appointments for viewing.